総事業費約7億円規模、2026年4月に入札公告予定 利便性向上と交通動線の整備へ

八潮市役所
八潮市は、新庁舎周辺の利便性向上を目的に、北側駐車場およびバスロータリーの整備を進める方針を明らかにしました。対象となるのは、八潮市中央一丁目2番地1地内の新庁舎北側エリアで、令和8年度から令和9年度にかけて整備が行われる予定です。
今回の整備は、令和7年度に予定されていた外構工事が入札不調となったことを受け、工事範囲を分割して再実施されるものです。まずは「北側駐車場およびバスロータリー等整備」を先行し、その後、歩行者専用道路や庁舎西側外構の整備が段階的に進められる計画となっています。
駐車場・バス動線を一体整備

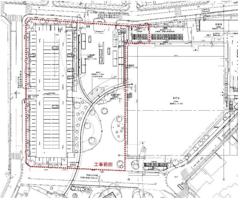
八潮市役所 新庁舎北側駐車場及びバスロータリー等の整備 配置予定図
整備内容の中心となるのは、来庁者の利便性を高めるための駐車場と公共交通の乗降スペースの確保です。配置図によると、北側には一般車用駐車場に加え、多目的駐車スペースやタクシー待機場、バス乗降場などが設けられる計画で、交通動線が整理される見込みです。
また、バス停や車寄せには屋根の設置も予定されており、雨天時でも利用しやすい環境が整えられます。来庁者だけでなく、周辺施設利用者にとっても利便性の向上が期待されます。
総事業費は約7億円、2026年10月着工へ
今回の整備にかかる事業費は、建築工事費が約6億1,300万円、電気設備工事費が約1億700万円とされており、総額で約7億円規模となります。
スケジュールとしては、令和8年4月に入札公告、6月に開札、9月に契約締結を経て、同年10月に工事着手。令和9年7月に工事完了し、翌8月には供用開始が予定されています。
新庁舎周辺の拠点性向上へ

八潮市役所 新庁舎北側駐車場及びバスロータリー等の整備 鳥瞰図
鳥瞰図からは、新庁舎を中心に広場や緑地と一体となった空間が整備されるイメージが示されており、単なる駐車場整備にとどまらず、まちの拠点としての機能強化が図られていることがうかがえます。
今回の北側整備に続き、今後予定されている歩行者動線の整備などが進めば、新庁舎周辺はより安全で快適な公共空間へと進化していきそうです。
市では引き続き段階的な整備を進めることで、来庁者の利便性向上とともに、周辺地域の回遊性やにぎわいの創出にもつなげていく考えです。













